Používame cookies

Súbory cookie a ďalšie technológie sledovania používame na zlepšenie vášho zážitku z prehliadania našich webových stránok, na to, aby sme vám zobrazovali prispôsobený obsah a cielené reklamy, na analýzu návštevnosti našich webových stránok a na pochopenie toho, odkiaľ naši návštevníci prichádzajú. Viac info

Na predaj 4 izbový rodinný dom v Dolnom Bare

Popis nehnuteľnosti

Zdieľať na Facebooku

Realitná kancelária REALITYFREE ponúka na predaj moderný 4-izbový rodinný dom – novostavbu v pokojnej lokalite Dolný Bar, len 5 km od Dunajskej Stredy (cca 6 minút autom). Dom sa nachádza v extraviláne obce s prístupom z miestnej komunikácie.

ZÁKLADNÉ INFORMÁCIE

Lokalita: Dolný Bar

Vzdialenosť od DS: 5 km / 6 min autom

Typ: samostatne stojaci rodinný dom

Stav: novostavba

Úžitková plocha: 100,79 m²

Zastavaná plocha: 116,3 m²

Pozemok: 389 m²

KONŠTRUKČNÉ RIEŠENIE

Jednopodlažný rodinný dom je navrhnutý bez stropnej konštrukcie, s valbovou strechou. Stavba je realizovaná z kvalitných keramických tvárnic TERMO BRIK s dôrazom na energetickú efektívnosť.

Obvodové murivo: hr. 250 mm

Zateplenie: 200 mm EPS

Vnútorné priečky: hr. 130 mm

Strecha: drevené priehradové väzníky

Okná a vchodové dvere: plastové 3- sklo, exteriér antracit / interiér biela

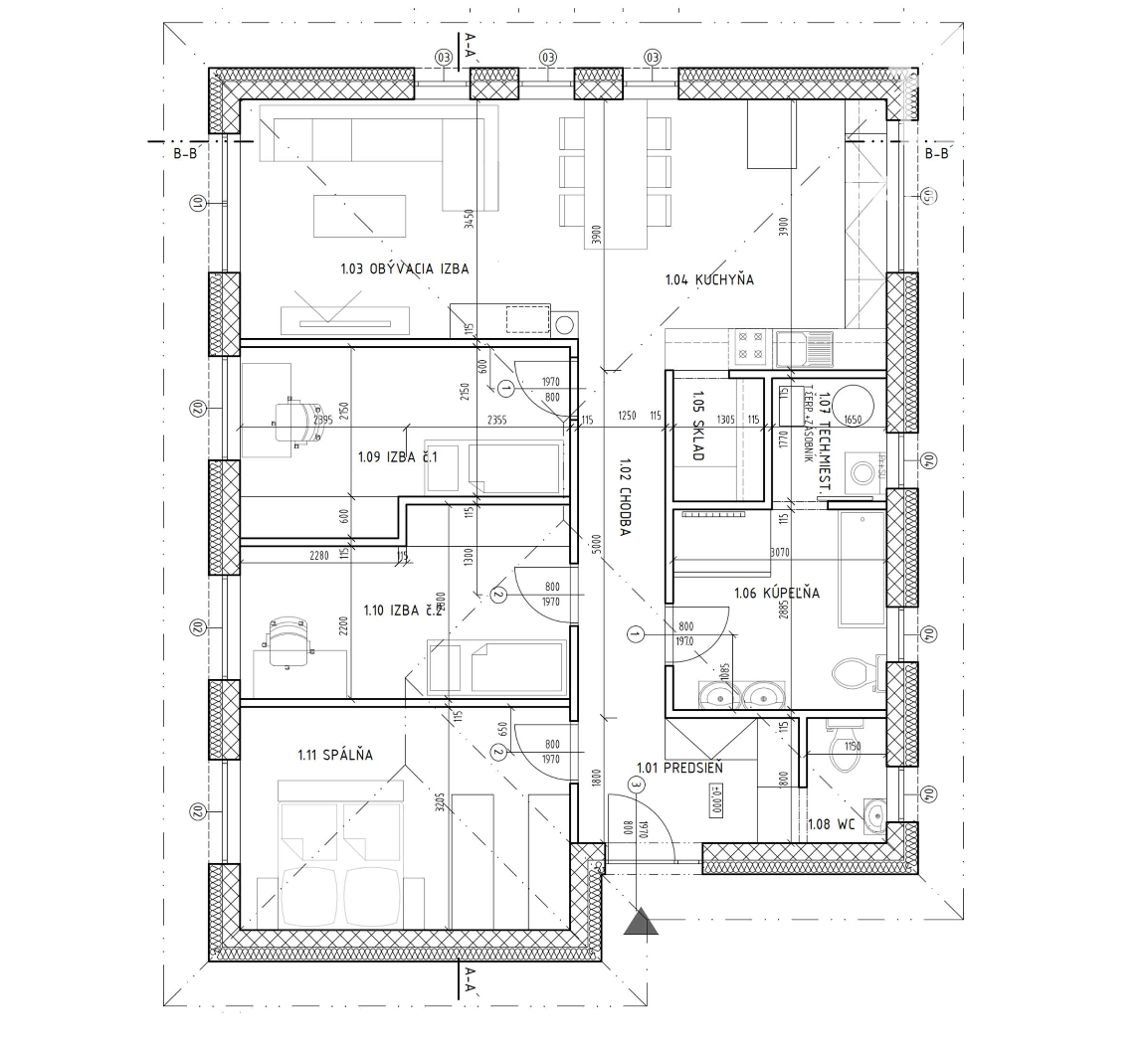
DISPOZÍCIA: 

Predsieň a zádverie (5,7 m²)

Chodba (6,25 m²)

Obývacia izba (16,78 m²) prepojená s kuchyňou (17,29 m²)

Tri samostatné izby (15,22 m², 11,82 m² a 11,58 m²)

Kúpeľňa (8,85 m²) a samostatné WC (2,07 m²)

Technická miestnosť a sklad (2,92 m² a 2,31 m²)

VYBAVENIE A TECHNICKÝ ŠTANDARD

Tepelné čerpadlo (dodávka + montáž) v cene

Predpríprava na vonkajšie žalúzie (kastlíky)

Vnútorné vápenno-sadrové omietky BAUMIT

Fasáda s povrchovou úpravou BAUMIT SILIKAT TOP

Kvalitná skladba podláh spĺňajúca tepelnoizolačné požiadavky

Teplovodné podlahové kúrenie

CENA A VARIANTY DOKONČENIA

Dom je možné kúpiť v dvoch variantoch:

🔹 HOLODOM – 184 880 €

Bez interiérových dverí a zárubní

Bez podláh, obkladov a dlažieb

Tepelné čerpadlo v cene

Predpríprava na vonkajšie žalúzie

🔹 ŠTANDARD – 194 880 €

Interiérové dvere a zárubne

Podlahy v obytných miestnostiach

Obklady a dlažby

Tepelné čerpadlo v cene

Predpríprava na vonkajšie žalúzie

LOKALITA

Dolný Bar ponúka pokojné bývanie v blízkosti prírody s výbornou dostupnosťou do Dunajskej Stredy, kde sa nachádza kompletná občianska vybavenosť – školy, škôlky, obchody, zdravotnícke zariadenia a služby.

Obec Dolný Bar disponuje základnou občianskou vybavenosťou- pošta, obchod Coop Jednota, lekár, škola a škôlka, reštaurácia, železničná stanica, v blízkosti je detské ihrisko a psí park.

Ceny sú vrátane realitného a právnického servisu.

Vlastnosti

Status:
aktívne
Vlastníctvo:
osobné
Plocha pozemku:
326 m2
Typ zeme:
rovina
Teritórium:
Extravilán
Šírka pozemku:
18 m
Dĺžka pozemku:
18 m
Úžitková plocha:
100.97 m2
Zastavaná plocha:
116.3 m2
Stav:
novostavba
Počet izieb:
4
Typ budovy:
tehla
Typ výbavy:
holopriestor
Špajza:
áno
Rok výstavby:
2026
Inžinierske siete:
áno
Voda:
áno
Elektrika:
áno
Kanalizácia:
áno
Voda - na pozemku:
áno
Elektrika - na pozemku:
áno
Kanalizácia - na pozemku - kanalizácia:
áno
Internet:
áno

Hypotekárna kalkulačka

184 880 €
Obec: Dolný Bar
Okres: Dunajská Streda
Kraj: Trnavský kraj
Druh: Domy
Typ: Predaj
Typ domu: Rodinný dom

Oliver Bystrický

Lokalita: Kvetná 1505/4D, 90041 Rovinka
  • Slovensky
  • Česky
  • English
  • Magyar
  • Pусский
  • Slovensky

Radi Vám poradíme